REQUEST A TOUR If you would like to see this home without being there in person, select the "Virtual Tour" option and your agent will contact you to discuss available opportunities.
In-PersonVirtual Tour

$ 650,000
Est. payment | /mo
10,454 Sqft Lot
$ 650,000
Est. payment | /mo
10,454 Sqft Lot
Key Details
Property Type Vacant Land
Sub Type Residential
Listing Status Active
Purchase Type For Sale
MLS Listing ID 73463225
HOA Y/N false
Annual Tax Amount $6,687
Tax Year 2025
Lot Size 10,454 Sqft
Acres 0.24
Property Sub-Type Residential
Property Description
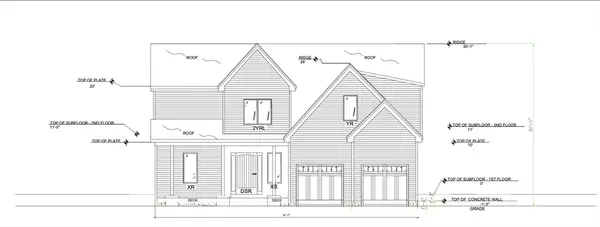
Approved permits in hand - an exceptional opportunity to purchase land with fully approved plans in desirable Dedham. This offering includes a 10,400+ sq.ft. lot along with town-approved building plans for a 2,700 sq.ft., 4-bedroom home featuring a 2-car attached garage. The existing home on site has already been approved for demolition. Set at the end of a quiet dead end street, and bordered by woods on two sides, the property offers privacy without sacrificing convenience. Just minutes to shopping, major routes, public transportation, and commuter rail. A rare chance to build new in a sought-after location.
Location
State MA
County Norfolk
Area East Dedham
Zoning B
Direction From Washington St, to Oak St, Right on Schiller, last on dead end right side.
Exterior
Community Features Public Transportation, Shopping
Building
Lot Description Level, Sloped, Wooded
Sewer Public Sewer, At Street
Water Public
Others
Senior Community false
Listed by Compass
GET MORE INFORMATION








